DPU St.Červar – Sveta Ana (DPU-24)
Detaljni plan uređenja detaljno određuje prostorni razvoj naselja ili dijela naselja s osnovom prostornih i funkcionalnih rješenja, uvjeta i oblikovanja pojedinih prostornih cjelina naselja.
Detaljni plan uređenja u skladu s prostornim planovima šireg područja /PPU, GUP/ detaljno razrađuje:
- uvjete za gradnju i uređenje pojedinih zahvata u prostoru, osobito u odnosu na njihovu namjenu, položaj, veličinu, opće smjernice oblikovanja i način priključivanja na javnu, komunalnu i drugu infrastrukturu,
- određuje mjere za zaštitu okoliša, prirodnih, krajobraznih, kulturnopovijesnih i drugih vrijednosti,
- odredbe za provođenje plana.
Lokacija: - St. Červar – Sveta Ana
Namjena: - stambena – prigradska stambena zona
Odredbe za provođenje: Službeni glasnik br. 01/03.
Grafički prikazi:
0.1_Sira situacija-Model
(716.76KB)
0.2_Katastarsko-geod podloga-Cervar
(469.45KB)
0.2_Katastarsko-geod podloga-Sv.Ana
(302.25KB)
1_Detaljna namjena povrsina-Cervar
(599.36KB)
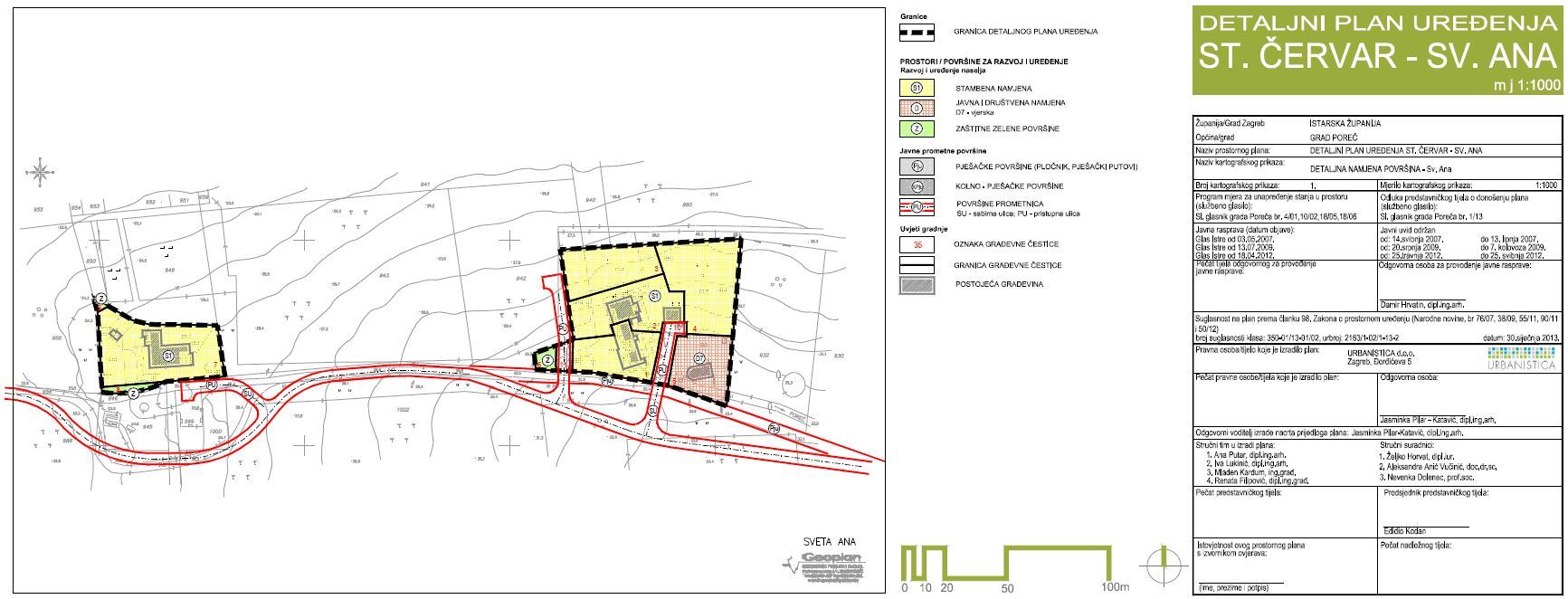
1_Detaljna namjena povrsina-Sv.Ana
(348.73KB)
2-1_Promet-Cervar
(616.92KB)
2-1_Promet-SvAna
(360.29KB)
2-2_Elektroopskrba, jr, tk-Cervar
(644.16KB)
2-2_Elektroopskrba, jr, tk-SvAna
(368.23KB)
2-3_Voda i kanalizacija-Cervar
(652.17KB)
2-3_Voda i kanalizacija-SvAna
(357.33KB)
3_Uvjeti koristenja, uredenja i zastite povrsina-Cervar
(640.40KB)
3_Uvjeti koristenja, uredenja i zastite povrsina-SvAna
(374.16KB)
4_Uvjeti gradnje-Cervar
(739.31KB)
4_Uvjeti gradnje-SvAna
(398.36KB)



