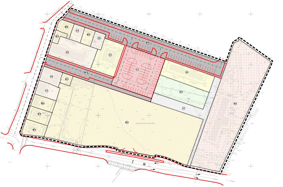
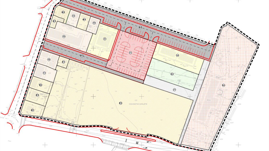
DPU Staro nogometno igralište u Poreču (DPU-14)

Detaljni plan uređenja detaljno određuje prostorni razvoj naselja ili dijela naselja s osnovom prostornih i funkcionalnih rješenja, uvjeta i oblikovanja pojedinih prostornih cjelina naselja.
Detaljni plan uređenja u skladu s prostornim planovima šireg područja /PPU, GUP/ detaljno razrađuje:
- uvjete za gradnju i uređenje pojedinih zahvata u prostoru, osobito u odnosu na njihovu namjenu, položaj, veličinu, opće smjernice oblikovanja i način priključivanja na javnu, komunalnu i drugu infrastrukturu,
- određuje mjere za zaštitu okoliša, prirodnih, krajobraznih, kulturnopovijesnih i drugih vrijednosti,
- odredbe za provođenje plana.
Lokacija: - grad Poreč – centar
Namjena: - mješovita
Odredbe za provođenje: Službeni glasnik br. 4/08., 1/11., 14/2016, 15/2016 - pročišćeni tekst
Grafički prikazi:
1._DETALJNA_NAMJENA_POVRŠINA
(273.95KB)
2.1._PROMET
(310.52KB)
2.2._ELEKTRONIČKA_KOMUNIKACIJSKA_MREŽA
(264.37KB)
2.3._ELEKTROENERGETIKA_-_SREDNJI_NAPON
(267.28KB)
2.4._ELEKTROENERGETIKA_-_NISKI_NAPON
(268.71KB)
2.5._JAVNA_RASVJETA
(299.84KB)
2.6._VODOOPSKRBA
(266.11KB)
2.7._ODVODNJA
(293.31KB)
2.8._PLINOOPSKRBA
(262.26KB)
3_KORISTENJE
(264.19KB)
4-1_UVJETI GRADNJE - GARAZA
(226.94KB)
4-2_UVJETI GRADNJE
(320.56KB)
