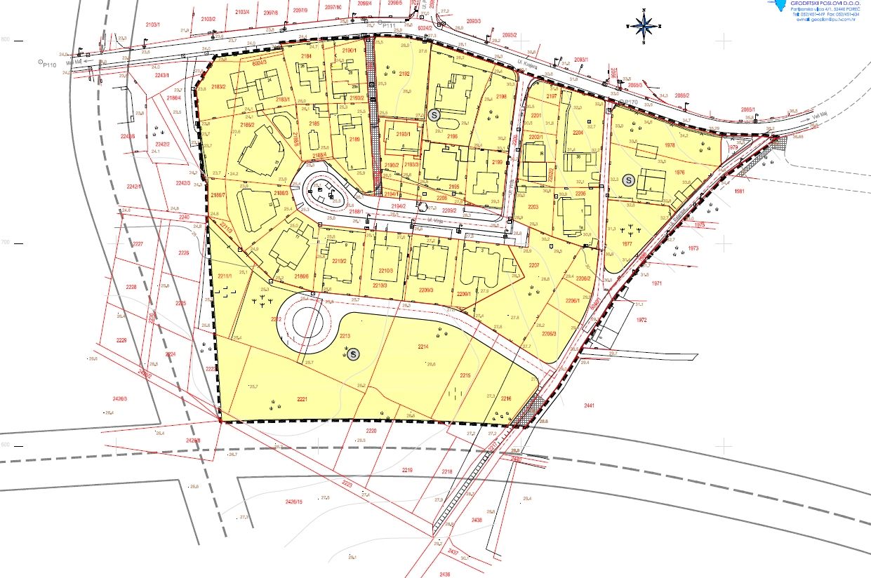
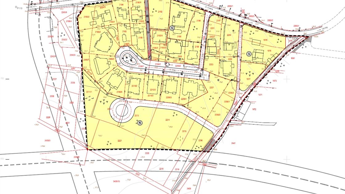
Urbanistički plana uređenja dijela stambenog naselja Veli -Mali Maj (UPU-15)

Urbanistički plan uređenja detaljnije određuje prostorni razvoj naselja ili dijela naselja s osnovom prostornih i funkcionalnih rješenja, uvjeta i oblikovanja pojedinih prostornih cjelina naselja.
Urbanistički plan uređenja u skladu sa važećim prostornim planovima šireg područja /PPU, GUP/, određuje osobito:
- podjelu područja na posebne prostorne cjeline te područja i koncept urbane obnove naselja ili dijelova naselja,
- namjene površina i prikaz površina javne namjene,
- razmještaj djelatnosti u prostoru,
- javnu, komunalnu i drugu infrastrukturu,
- mjere za zaštitu okoliša, očuvanje prirodnih i kulturnih vrijednosti,
- uređenje zelenih, parkovnih i rekreacijskih površina,
- zahvate u prostoru značajne za prostorno uređenje naselja,
- uvjete uređenja i korištenja površina i građevina,
- zahvate u prostoru u vezi sa zaštitom od prirodnih i drugih nesreća,
- odredbe za provođenje plana.
Lokacija: Veli- Mali Maj
Namjena: Stambeno naselje
Odredbe za provođenje: Službeni glasnik br. 09/2014.
Grafički prikazi:
