DPU Zone ugostiteljsko - turističke namjene Brulo (DPU-20)

Detaljni plan uređenja detaljno određuje prostorni razvoj naselja ili dijela naselja s osnovom prostornih i funkcionalnih rješenja, uvjeta i oblikovanja pojedinih prostornih cjelina naselja.
Detaljni plan uređenja u skladu s prostornim planom šireg područja /PPU/ detaljno razrađuje:
- uvjete za gradnju i uređenje pojedinih zahvata u prostoru, osobito u odnosu na njihovu namjenu, položaj, veličinu, opće smjernice oblikovanja i način priključivanja na javnu, komunalnu i drugu infrastrukturu,
- određuje mjere za zaštitu okoliša, prirodnih, krajobraznih, kulturnopovijesnih i drugih vrijednosti,
- odredbe za provođenje plana.
Lokacija: - naselje Poreč - Brulo
Namjena: - gospodarska – ugostiteljsko - turistička
Odredbe za provođenje: Službeni glasnik br. 6/11.
Grafički prikazi:
0 GRANICA PLANA
(1.12MB)
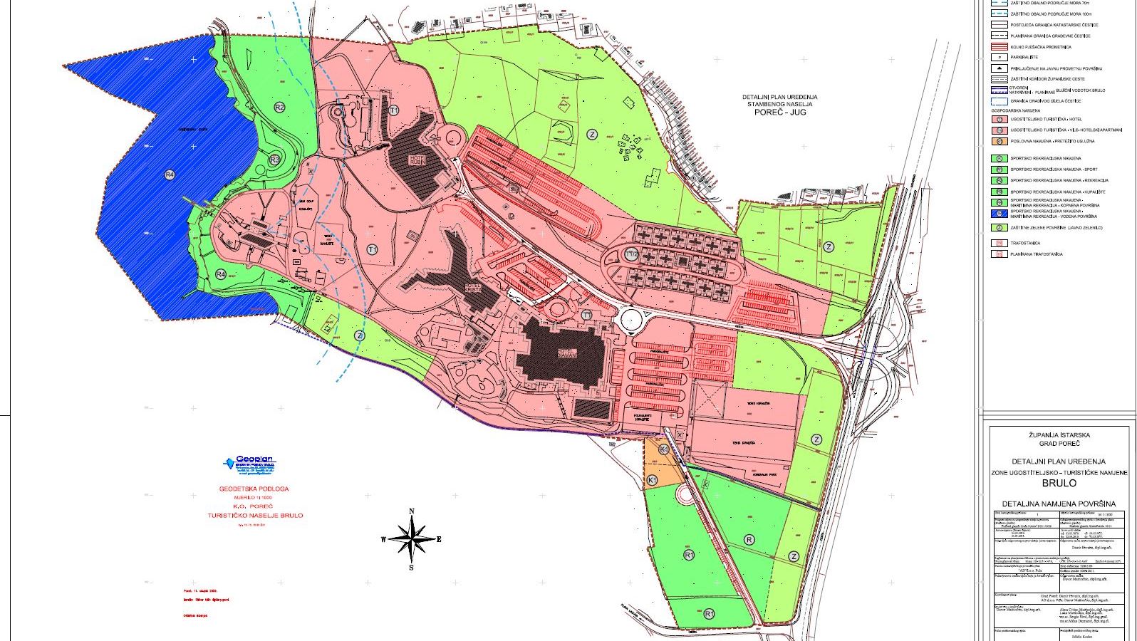
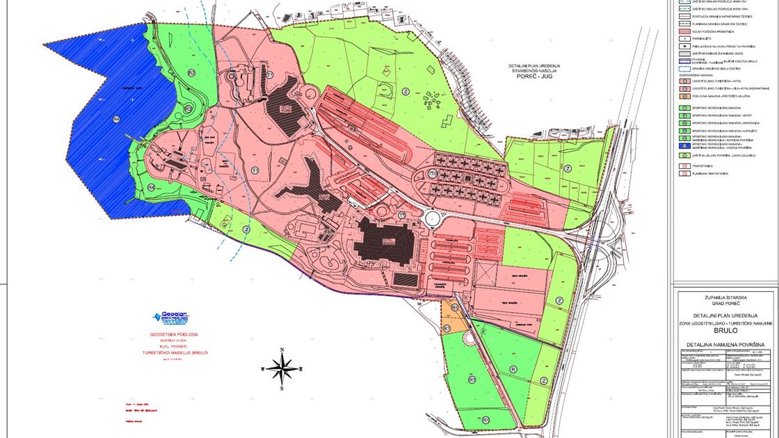
1. DETALJNA NAMJENA POVRŠINA
(1.31MB)
2.1. PROMET
(2.37MB)
2.2. TELEKOMUNIKACIJE
(1.55MB)
2.3. VODA
(1.57MB)
2.4. ODVODNJA
(1.73MB)
2.5. SN I NN MREŽA
(1.63MB)
2.6. JAVNA RASVJETA
(1.65MB)
3. UVJETI KORIŠTENJA
(1.97MB)
4. UVJETI GRADNJE
(1.85MB)
ODREDBE
(277.34KB)
POLAZIŠTA
(356.65KB)
