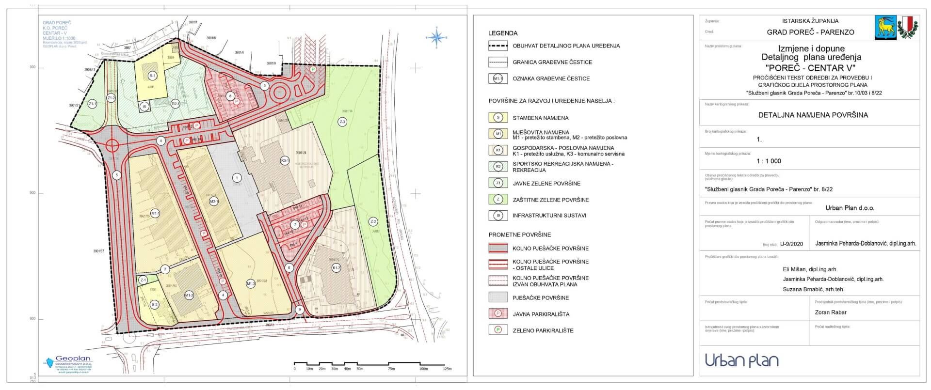
DPU Poreč - CENTAR V (DPU-13)

Detaljni plan uređenja detaljno određuje prostorni razvoj naselja ili dijela naselja s osnovom prostornih i funkcionalnih rješenja, uvjeta i oblikovanja pojedinih prostornih cjelina naselja.
Detaljni plan uređenja u skladu s prostornim planovima šireg područja /PPU, GUP/ detaljno razrađuje:
- uvjete za gradnju i uređenje pojedinih zahvata u prostoru, osobito u odnosu na njihovu namjenu, položaj, veličinu, opće smjernice oblikovanja i način priključivanja na javnu, komunalnu i drugu infrastrukturu,
- određuje mjere za zaštitu okoliša, prirodnih, krajobraznih, kulturnopovijesnih i drugih vrijednosti,
- odredbe za provođenje plana.
Lokacija: - grad Poreč – centar
Namjena: - mješovita
Odredbe za provođenje: Službeni glasnik br. 10/03., 08/22. i 08/22. - pročišćeni tekst
Grafički prikazi:
1_Namjena_Model
(720.03KB)
2A_Promet_Model
(847.08KB)
2B1_Elektroničke_komunikacije_Model
(643.74KB)
2C1_Elektrooposkba_SN_I_NN_Model
(652.95KB)
2C2_Elektrooposkba_JR_Model
(691.10KB)
2C3_Plinoopskrba_Model
(631.07KB)
2D_Vodoopskba_Model
(633.96KB)
2E_Odvodnja_Model
(677.22KB)
3_Uvjeti_koristenja_uređenja_i_zastite_Model
(650.50KB)
4_Uvjeti_gradnje_Model
(695.18KB)
