DPU stambenog naselja Srednji Špadići u Poreču (DPU-4)

Detaljni plan uređenja detaljno određuje prostorni razvoj naselja ili dijela naselja s osnovom prostornih i funkcionalnih rješenja, uvjeta i oblikovanja pojedinih prostornih cjelina naselja.
Detaljni plan uređenja u skladu s prostornim planovima šireg područja /PPU, GUP/ detaljno razrađuje:
- uvjete za gradnju i uređenje pojedinih zahvata u prostoru, osobito u odnosu na njihovu namjenu, položaj, veličinu, opće smjernice oblikovanja i način priključivanja na javnu, komunalnu i drugu infrastrukturu,
- određuje mjere za zaštitu okoliša, prirodnih, krajobraznih, kulturnopovijesnih i drugih vrijednosti,
- odredbe za provođenje plana.
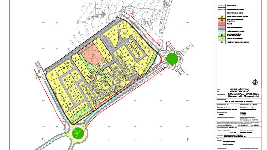
Lokacija: - grad Poreč – Srednji Špadići
Namjena: - stambena – gradska stambena zona
Odredbe za provođenje: Službeni glasnik br. 9/08.
Grafički prikazi:
1. DETALJNA NAMJENA POVRŠINA
(1.72MB)
2.1. PROMET
(1.58MB)
2.2. TELEKOMUNIKACIJE
(1.54MB)
2.3.1. ELEKTROENERGETIKA - SREDNJI NAPON
(1.62MB)
2.3.2. ELEKTROENERGETIKA - NISKI NAPON
(1.68MB)
2.3.3. JAVNA RASVJETA
(1.62MB)
2.4. VODOOPSKRBA
(1.69MB)
2.5. ODVODNJA
(1.68MB)
3. UVJETI KORIŠTENJA, UREĐENJA I ZAŠTITE POVRŠINA
(2.32MB)
4. UVJETI GRAĐENJA
(1.86MB)
